These are pictures of the house as it was listed online in one of the Italian Real Estate portals. This is typical of Real Estate in Italy: very few pictures and limited information. You really need to have the house viewed by someone you trust and have it physically inspected by a Geometra.
Despite the few photos and the lack of details it looked very habitable.
Casa Stefano Before
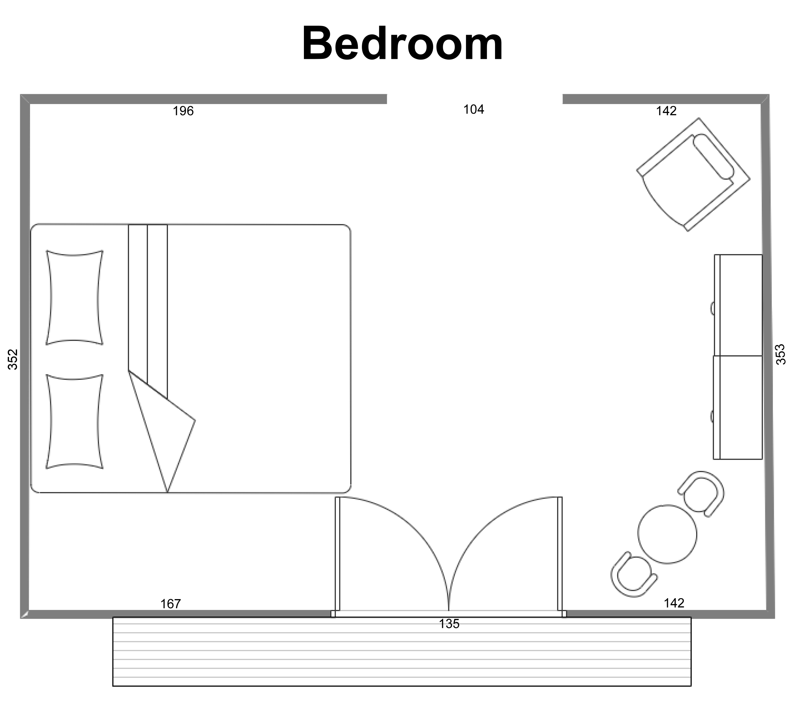
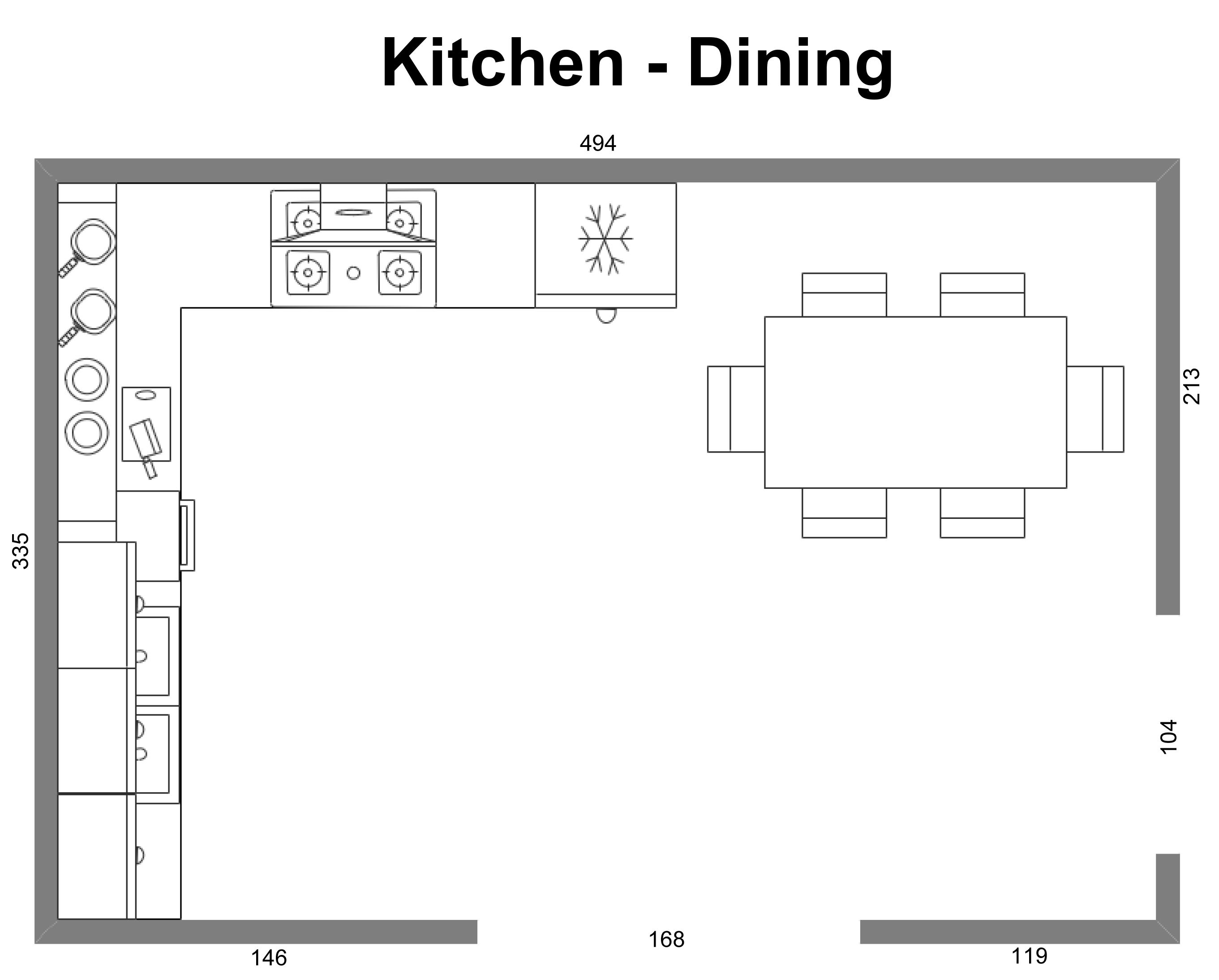
These are pictures of the house when I first saw it. I stayed in the house for about 10 days, measuring and creating detailed floor plans so I could plan the remodeling back in the U.S.
I didn't take very good photos either, but the videos on the YouTube channel tell a better story. Click the icon at the bottom of the page or the link on the Links page to watch videos.
Casa Stefano Floor Plans
The first image is the original floor plan on file with the Ministry of Finance circa 1940.